设计案例:
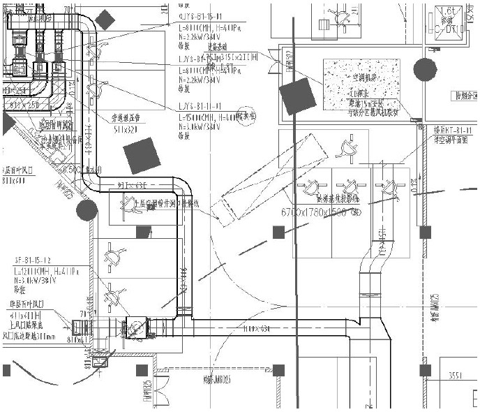
地下室部分加压送风系统不合理:引管太长,有些穿越多个防火分区或防火单元送风,万一某个防火阀失灵或穿越的防火分区着火,管道里的空气由于线路过长容易达到70°C而熔断,将无法进行有效加压送风。
处理意见:
1、风管避免穿越防火墙的原则应始终作为设计的首要考虑因素之一。
2、加压送风系统的功能目标、设置要求、运行模式、?;し绞降染煌谌粘Mǚ缈盏飨低?,当其确有必要穿越除防火墙外的其他防火分隔时,应采取符合《建规》6.3.5 条规定要求的?;ご胧挥ι柚梅阑鸱?。
规范名称及条文内容:
《建筑设计防火规范》GB 50016—2014 (2018 年版)
6.3.5 防烟、排烟、供暖、通风和空气调节系统中的管道及建筑内的其他管道,在穿越防火隔墙、楼板和防火墙处的孔隙应采用防火封堵材料封堵。风管穿过防火隔墙、楼板和防火墙时,穿越处风管上的防火阀、排烟防火阀两侧各2.0m范围内的风管应采用耐火风管或风管外壁应采取防火保护措施,且耐火极限不应低于该防火分隔体的耐火极限。
9.3.11 通风、空气调节系统的风管在下列部位应设置公称动作温度为70℃的防火阀:
1、穿越防火分区处;
2、穿越通风、空气调节机房的房间隔墙和楼板处;
3、穿越重要或火灾危险性大的场所的房间隔墙和楼板处;
4、穿越防火分隔处的变形缝两侧;
5、竖向风管与每层水平风管交接处的水平管段上。
注:当建筑内每个防火分区的通风、空气调节系统均独立设置时,水平风管与竖向总管的交接处可不设置防火阀。
解析:
风管穿越防火分隔处设防火阀是为了防止烟气和火势蔓延。火灾从何而来?建筑内的空间大致可以划分为两类:有可燃物(火灾荷载)的、可能发生火灾的空间,如一般功能房间及其附属房间,以及无可燃物、也不可能发生火灾的相对安全的空间,如疏散楼梯间。通风空调系统是为建筑功能服务的,风管难免必须通过各种分隔进入功能房间且开设若干风口,万一房间失火,烟火的确是比较容易进入风管并蔓延开来,因此防火阀是必要的。加压送风管呢?首先是被要求设置在耐火1h的竖井内,风口所朝向的只会是防烟楼梯间、防烟前室、避难层(间)等相对安全空间,哪来的烟火呢?即便加压送风管有必要水平布置并通过可能发生火灾的房间,但在这里风管上是没有任何开口的,系统运行时又是正压的,烟火如何进入风管呢?担心风管变形损坏吗?耐火极限1h(或吊顶+0.5h)的?;げ阍诠娑ǖ氖奔淠诒;し绻艿耐币脖Vち嘶鹪殖跗诘娜嗽卑踩枭?mdash;—这不正是防烟系统的初衷吗?
加压送风系统不同于日常通风、空调系统,系统的设置目的(功能目标)是为了它所保护的部位(如前室或楼梯间)的消防安全,而系统自身的安全则是通过采用不燃且耐火的风管材料及防火分隔保护来实现的,它在规定的风管(或风管+分隔)的耐火极限范围内必须保持畅通无阻,故加压送风管在穿过防火分隔处设防火阀不仅于事无补,反而增加了系统的阻力和漏风,甚至可能误动作关闭,妨碍系统发挥应有的作用。

收藏我们
在线留言
站点地图
全国咨询热线 : 
